สัมผัสประสบการณ์การพักอาศัยแบบ Private Luxury Pool Villa ท่ามกลางธรรมชาติและความเงียบสงบที่ Saiyuan, Phuket
โครงการ Nature’s Rest Villa Saiyuan ออกแบบเพื่อความเป็นส่วนตัวสูงสุด มาพร้อม สระว่ายน้ำส่วนตัว, Solar Panel, และ Smart Home System

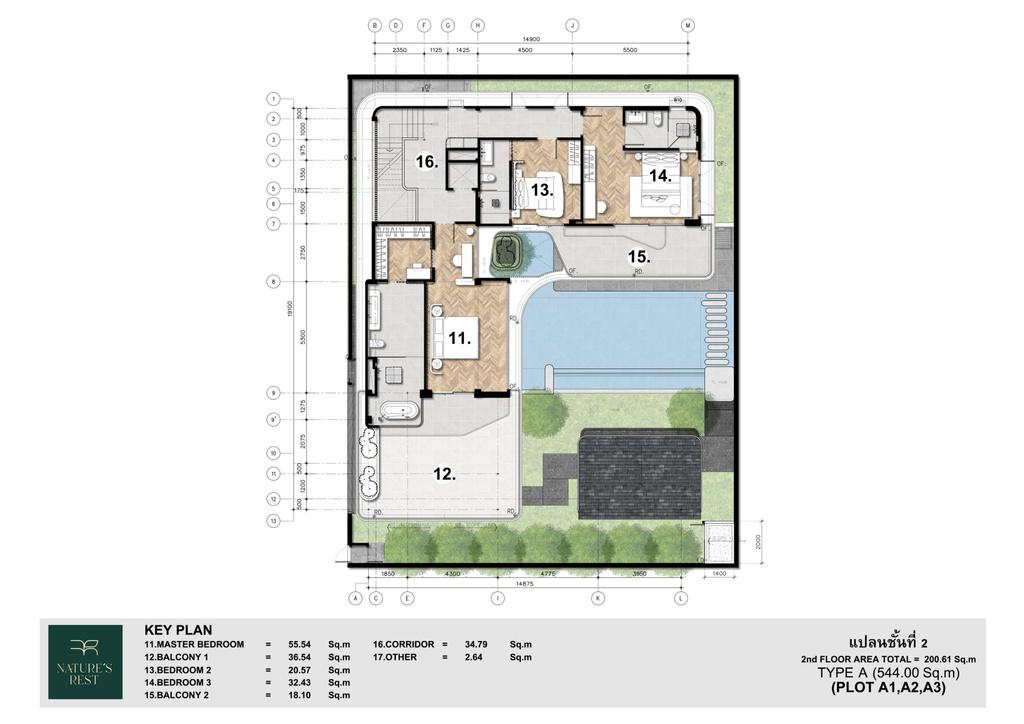
รายละเอียดบ้านตัวอย่าง (Plot A1)
- พื้นที่ดิน: 436.8 ตร.ม.
- พื้นที่ใช้สอย: 544 ตร.ม.
- ห้องนอน: 4
- ห้องน้ำ: 5
- สระว่ายน้ำ: 4.85 × 11 ม.
- ราคา:
43,000,000 บาท - ราคาพิเศษ: 40,000,000 บาท (รวมเฟอร์นิเจอร์ครบชุด)
สิ่งที่รวมในราคา
- ครัวบิวท์อิน + เครื่องใช้ไฟฟ้าครบชุด
- เฟอร์นิเจอร์แพ็กเกจทั้งหลัง
- Solar Panel + ระบบบ้านอัจฉริยะ (Smart Home)


แผนผังพื้นที่ (Floor Plan)
- ชั้น 1: โรงจอดรถ, โถง, ห้องรับแขก/รับประทานอาหาร, ห้องนอน 1, ห้องน้ำ, ลานซักล้าง, ระเบียงสระ, สระว่ายน้ำ, ศาลา, ห้องปั๊ม, พื้นที่อเนกประสงค์
- ชั้น 2: ห้องนอนใหญ่พร้อมระเบียง, ห้องนอน 2-3, ระเบียง, โถงทางเดิน







สิ่งอำนวยความสะดวกโครงการ
- Club House ครบวงจร
- Reception
- Meeting Room / Co-Working Space
- Fitness & Wellness Room
- Sauna & Onsen
- บริการ Limousine รับ-ส่งสนามบิน 12 ครั้ง/ปี (3 ปีแรก)
ทำเลศักยภาพ
ตั้งอยู่ที่ Saiyuan – Rawai, Phuket ใกล้แหล่งท่องเที่ยวและสิ่งอำนวยความสะดวกครบครัน
ชายหาด
- หาดในหาน 2.5 กม.
- หาดราไวย์ 3.9 กม.
- หาดยะนุ้ย 4.7 กม.
- หาดกะตะ 5 กม.
- หาดกะรน 6.7 กม.
โรงเรียนนานาชาติ
- Lighthouse International School 3.5 กม.
- International School of Phuket (ISP) 5.2 กม.
- Berda Clude International School (BCIS) 8.5 กม.
แหล่งช้อปปิ้งและไลฟ์สไตล์
- Rawayana Central Park 3.7 กม.
- HomePro Village Chalong 6 กม.
- Makro / GO Wholesale Rawai 6.5 กม.
- Robinson Lifestyle Chalong 8.9 กม.
- Rawai Seafood Market 4.5 กม.
- จุดชมวิวกะรน 1.8 กม. / แหลมพรหมเทพ 5.4 กม.
เงื่อนไขการซื้อขาย
- จอง (ไม่คืนเงิน) 2% = 800,000 บาท
- ทำสัญญาภายใน 30 วันหลังจอง 48% = 19,200,000 บาท
- ชำระวันโอนกรรมสิทธิ์ 50% = 20,000,000 บาท
ค่าใช้จ่ายอื่น
- ค่าส่วนกลาง 15,000 บาท/เดือน (ชำระล่วงหน้า 1 ปี)
- ค่ากองทุนแรกเข้า 100,000 บาท
- ค่าธรรมเนียมโอนและภาษี แบ่ง 50/50
จุดขายสำคัญ (Key Selling Points)
- บ้านเดี่ยวพูลวิลล่า 2 ชั้น พร้อมสระว่ายน้ำส่วนตัว
- พื้นที่ใช้สอยใหญ่ 544 ตร.ม. พร้อม 4 ห้องนอน 5 ห้องน้ำ
- แถม Solar Panel + Smart Home ฟรี
- Club House, Fitness, Onsen & Sauna
- ทำเลใกล้หาดดัง, โรงเรียนนานาชาติ และแหล่งช้อปปิ้งครบครัน


